| Specifiche tecniche Costruzione 3+ | |
| tipo di legno | abete naturale |
| spessore della parete | mm 70 |
| isolamento della parete, tetto e pavimento | opzionale |
| doppia scanalatura | compresa |
| listoni sottopavimento impregnati | compresi |
| perline pavimento | mm 28 |
| perline tetto | mm 18 |
| impermeabilizzazione tetto | opzionale |
| costruzione del tetto | arcarecci e tavi |
| antivento | asta filettata / rinforzo antivento |
| struttura garantina | 5 anni |
| Specifiche tecniche Finestre 3+ | |
| tipo di legno | pino lamellare |
| listelli | con clip |
| vetro | doppio (4/14/4) |
| Valore U>W/m2k | 2,8 |
| guarnizione in gomma | compresa |
| gocciolatoio | alluminio |
| apertura finestra | interno |
| sistema di apertura | anta a ribalta a una mano |
| Specifiche tecniche Porte 2+ | |
| tipo di legno | pino lamellare |
| listelli | con viti |
| vetro | doppio (4/14/4) |
| Valore U>W/m2k | 2,8 |
| guardinizione in gomma | compresa |
| soglia | alluminio |
| apertura porta | esterno |
| serratura | cilindro |
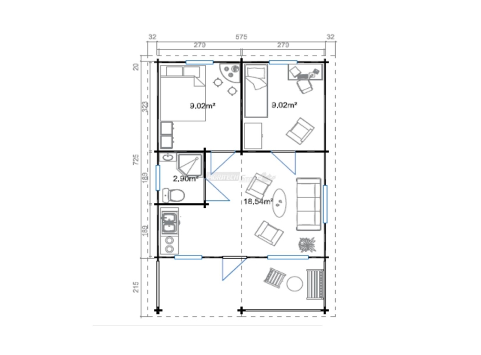
| Specifiche tecniche cottage | |
| Dimensioni a terra | cm 575x940 |
| superficie pavimento interna | mq 39,48 |
| altezza massima | cm 326 |
| altezza parete | cm 224 |
| sporgenza frontale | cm 220 |
| sporgenza posteriore | cm 20 |
| sporgenza destra | cm 32 |
| sporgenza sinistra | cm 32 |
| porta ingresso finestata | cm 82,7x200 |
| nr. 3 porte interne pannello in legno | cm 82,7x200 |
| nr. 4 finestre singole | cm 91,6x105 |
| nr. 2 finestre doppie | cm 137,4x105 |
| Dimensine imballo | cm 630x115x87 kg 1828 + 630x115x87 kg 1828 + 360x115x87 kg 1045 + 200x115x80 kg 534 |
| opzional consigliati: | |
| guaina ardesiata | nr. 6 rotoli |
| tegole canadesi | nr. 25 confezioni |
| impregnante | nr. 8 confezioni |

ti raggiungiamo ovunque
24/7 Assistenza pre e post vendita
Carte, Paypal e contrassegno
Leggi tutte le recensioni